Версия для слабовидящих

Постановление №799-п . от 26.05.2016

 АДМИНИСТРАЦИЯ ГОРОДА ОБНИНСКА

ПОСТАНОВЛЕНИЕ



26.05.2016 № 799-п .


О внесении изменений в постановление Администрации города
от 17.06.2013 № 929-п «Об определении границ и утверждении
схем границ прилегающих к некоторым организациям и объектам территорий,
на которых не допускается розничная продажа алкогольной продукции»

В соответствии с Федеральным законом от 22.11.1995 № 171-ФЗ «О государственном регулировании производства и оборота этилового спирта, алкогольной и спиртосодержащей продукции и об ограничении потребления (распития) алкогольной продукции», постановлением Правительства Российской Федерации от 27.12.2012 № 1425 «Об определении органами государственной власти субъектов Российской Федерации мест массового скопления граждан и мест нахождения источников повышенной опасности, в которых не допускается розничная продажа алкогольной продукции, а также определении органами местного самоуправления границ прилегающих к некоторым организациям и объектам территорий, на которых не допускается розничная продажа алкогольной продукции», Законом Калужской области от 06.04.2006 № 182-ОЗ «О регулировании отдельных правоотношений в сфере оборота алкогольной продукции на территории Калужской области», Уставом муниципального образования «Город Обнинск», Решением Обнинского городского Собрания от 23.04.2013 № 05-44 «Об утверждении способа расчета расстояния от организаций и(или) объектов, на которых не допускается розничная продажа алкогольной продукции до границ прилегающих территорий»

ПОСТАНОВЛЯЮ:

1. Внести в постановление Администрации города от 17.06.2013 № 929-п «Об определении границ и утверждении схем границ прилегающих к некоторым организациям и объектам территорий, на которых не допускается розничная продажа алкогольной продукции» следующие изменения:
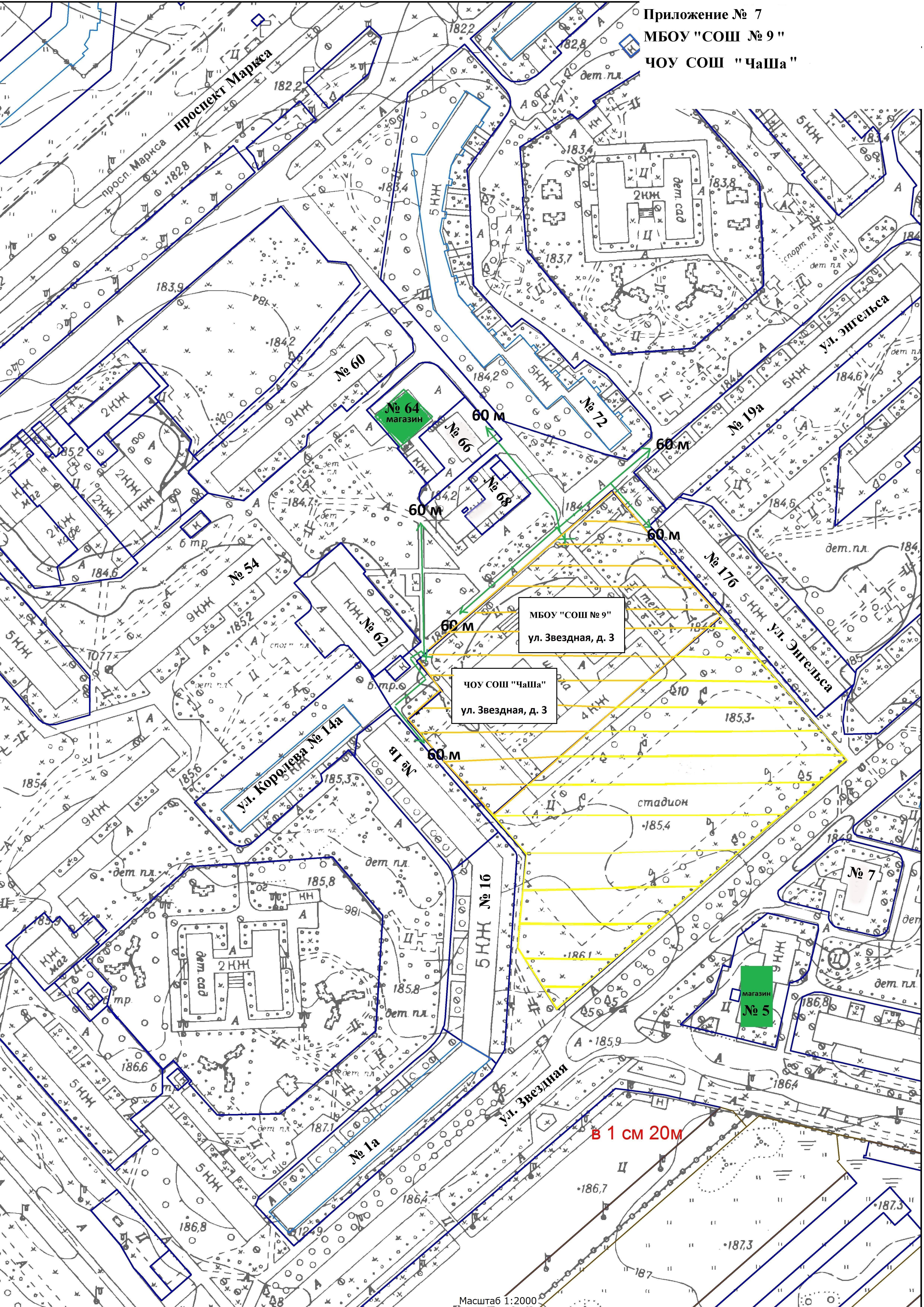
1.1. Изложить п.1.7 в новой редакции: МБОУ «СОШ №9»,
1.7.1. ЧОУ СОШ «ЧаШа» (приложение № 7).
1.2. Изложить п.1.8 в новой редакции: МБОУ «СОШ №10»,
1.8.1. МБОУ «Лицей ФТШ» (приложение № 8).
1.3. Изложить п.1.68 в новой редакции: МБОУ ДОД ЦРТДиЮ (приложение № 68).
1.4. Дополнить пункт 1 постановления подпунктом следующего содержания:
1.120. ГБОУ ДО КО «СДЮШОР Л.Латыниной» (приложение №120).
1.121. ООО «Фокс Фитнес» (приложение № 121).
1.122. Войсковая часть 09686,
1.122.1. Войсковая часть 3382 (приложение № 122).
1.123. Центр профессиональной подготовки УМВД России по Калужской области (приложение № 123).
1.124. НОУ ДПО «ЦИПК Росатома» (приложение № 124).
1.5. Приложение № 7, приложение № 8 и приложение № 68 к постановлению изложить в новой редакции согласно приложениям к настоящему постановлению.
1.6. Дополнить постановление приложениями №№ 120-124 согласно приложениям к настоящему постановлению.
2. Настоящее постановление вступает в силу после официального опубликования.
3. Контроль за исполнением настоящего постановления возложить на заместителя главы Администрации города по экономическому развитию Г.Е. Ананьева.

Глава Администрации города В.В.Шапша

Приложения

Дата публикации: 31.05.2016 23:04