Версия для слабовидящих

Постановление №354-п от 04.03.2016

В соответствии с Федеральным законом от 22.11.1995 № 171-ФЗ «О государственном регулировании производства и оборота этилового спирта, алкогольной и спиртосодержащей продукции и об ограничении потребления (распития) алкогольной продукции», постановлением Правительства Российской Федерации от 27.12.2012 № 1425 «Об определении органами государственной власти субъектов Российской Федерации мест массового скопления граждан и мест нахождения источников повышенной опасности, в которых не допускается розничная продажа алкогольной продукции, а также определении органами местного самоуправления границ прилегающих к некоторым организациям и объектам территорий, на которых не допускается розничная продажа алкогольной продукции», Законом Калужской области от 06.04.2006 № 182-ОЗ «О регулировании отдельных правоотношений в сфере оборота алкогольной продукции на территории Калужской области», Уставом муниципального образования «Город Обнинск», Решением Обнинского городского Собрания от 23.04.2013 № 05-44 «Об утверждении способа расчета расстояния от организаций и(или) объектов, на которых не допускается розничная продажа алкогольной продукции до границ прилегающих территорий»

 
ПОСТАНОВЛЯЮ:
 
1. Внести в постановление Администрации города от 17.06.2013 № 929-п «Об определении границ и утверждении схем границ прилегающих к некоторым организациям и объектам территорий, на которых не допускается розничная продажа алкогольной продукции» следующие изменения:
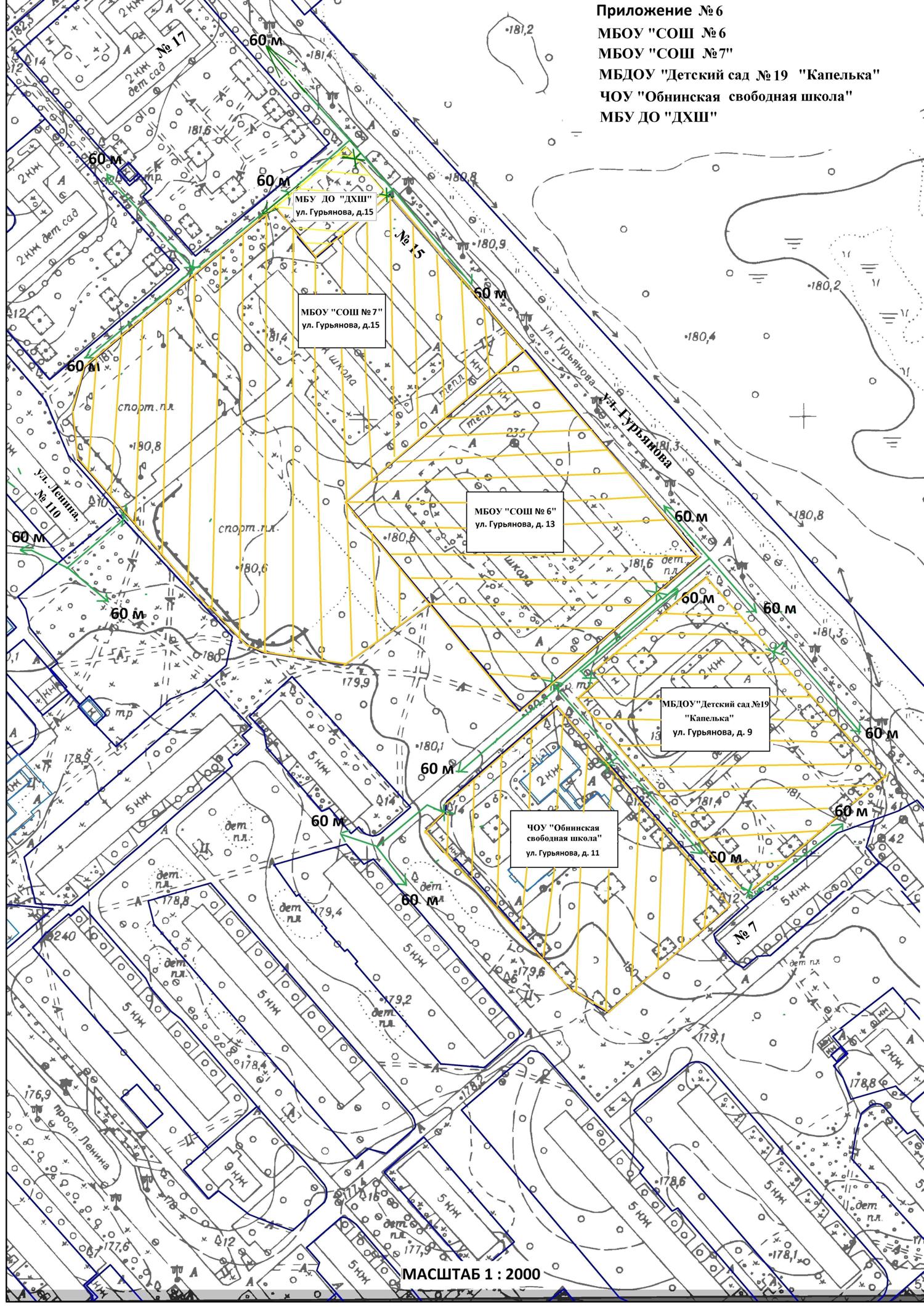
1.1. Изложить п.1.6 в новой редакции: МБОУ «СОШ №6»,
1.6.1. МБОУ «СОШ №7»,
1.6.2. МБДОУ «Детский сад №19 «Капелька»,
1.6.3. ЧОУ «Обнинская свободная школа»,
1.6.4. МБУ ДО «ДХШ» (приложение № 6).
1.2. Изложить п.1.9 в новой редакции: МБОУ «СОШ №11 им.Подольских курсантов»,
1.9.1. ЧОУ «СОШ «Обнинский колледж»,
1.9.2. МБОУ ДОД ЦРТТДиЮ (приложение № 9).
1.3. Дополнить пункт 1 постановления подпунктом следующего содержания:
1.109. МБОУ ДОД ЦРТДиЮ (приложение № 109).
1.110. МБОУ ДОД ЦРТДиЮ (приложение № 110).
1.111. МБОУ ДОД ЦРТДиЮ (приложение № 111).
1.112. МБОУ ДОД ЦРТДиЮ (приложение № 112).
1.113. МБОУ ДОД ЦРТДиЮ (приложение № 113).
1.114. МБОУ ДОД ЦРТДиЮ,
1.114.1. МБОУ ДО ДШИ №2 (приложение № 114).
1.115. МБОУ ДОД ЦРТДиЮ (приложение № 115).
1.116. МБОУ ДО ДШИ №1 (приложение № 116).
1.4. Приложение № 6 и приложение № 9 к постановлению изложить в новой редакции согласно приложениям к настоящему постановлению.
1.5. Дополнить постановление приложениями №№ 109-116 согласно приложениям к настоящему постановлению.
2. Настоящее постановление вступает в силу после официального опубликования.
3. Контроль за исполнением настоящего постановления возложить на заместителя главы Администрации города по экономическому развитию Г.Е. Ананьева.
 
Глава Администрации города В.В.Шапша
 
 
Дата публикации: 23.03.2016 09:24